Planung
Kurz gesagt, nach vielen Gesprächen und Überlegungen haben wir uns für ein solides, traditionell gebautes Haus entschieden.
Die Finanzierung unseres Projekts wurde durch die Ärzteversorgung Niedersachsen (Hauptfinanzierung) und die Commerzbank (Zwischenfinanzierung) ermöglicht.
Die Finanzierung unseres Projekts wurde durch die Ärzteversorgung Niedersachsen (Hauptfinanzierung) und die Commerzbank (Zwischenfinanzierung) ermöglicht.

 

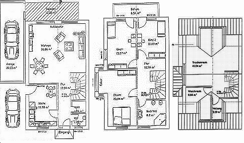
Die Hausdaten im Ueberblick
Gesamt Wohnflaeche: 130 qm
Aussenmasse: 7,00m x 12.00m
Dach: Satteldach 4-Gerad schwarz
Grundstuecksgroesse: 10m x 25m
Aussenmasse: 7,00m x 12.00m
Dach: Satteldach 4-Gerad schwarz
Grundstuecksgroesse: 10m x 25m
 
Hier sind die Ansichten aus allen drei Richtungen

 
Die Bauplaene haben wir inzwischen schon vom Architekten erhalten.
Da sich das Grundstück in einem hochwassergefährdeten Gebiet und auf einem ehemaligen Kohlebergwerk mit wahrscheinlichem Methangasleck befindet, haben wir uns gegen den Bau eines Kellers entschieden.
Da sich das Grundstück in einem hochwassergefährdeten Gebiet und auf einem ehemaligen Kohlebergwerk mit wahrscheinlichem Methangasleck befindet, haben wir uns gegen den Bau eines Kellers entschieden.
 
Erdgeschoß, Obergeschoß, Dachgeschoß

Copyright 2004 forgani.com
